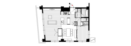
マンション一室の改修工事
行き止まりの少ないプランを計画
視線が通る、奥行きのある空間を目指した
用途:個人住宅
場所:東京都武蔵野市
面積:74.37m2
構造:鉄筋鉄骨コンクリート構造
築年:1970.08(築42年)
設計期間:2011.05-06
施工期間:2011.07-08
施工:M-CUBE
construction → ■
RYO ASO DESIGN OFFICE 阿相稜 設計事務所 吉祥寺
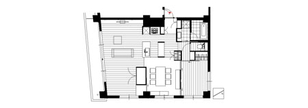
マンション一室の改修工事
行き止まりの少ないプランを計画
視線が通る、奥行きのある空間を目指した
用途:個人住宅
場所:東京都武蔵野市
面積:74.37m2
構造:鉄筋鉄骨コンクリート構造
築年:1970.08(築42年)
設計期間:2011.05-06
施工期間:2011.07-08
施工:M-CUBE
construction → ■
RYO ASO DESIGN OFFICE 阿相稜 設計事務所 吉祥寺
Pingback: 空間のご提供 | ryo aso design office·
Pingback: press [SOLID] | RYO ASO DESIGN OFFICE·
Pingback: 撮影! | RYO ASO DESIGN OFFICE·
Pingback: 撮影 [NEXTWEEKEND] | RYO ASO DESIGN OFFICE·