売却しました!!
_____________
設計を手掛けた物件を販売します!
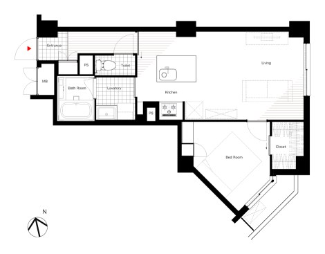
幅広ナラ材フローリング、躯体の表情を残した壁、ステンレスのオーダーキッチン、、素材・仕様にこだわった空間です。
約50m2のコンパクトな空間を余すところなく使用、まずはお越しいただきご体験下さい。
ご来場のご予約・お問合せは下記電話番号までお願いいたします。
■事業主 株式会社田中建設 : 0120-175-311
■設計 RYO ASO DESIGN OFFICE : 090-3526-6198
■概要
住所:東京都港区麻布十番2丁目
交通:東京メトロ南北線麻布十番駅、都営大江戸線麻布十番駅、徒歩1分
面積:46.77m2(1LDK)
構造:鉄筋コンクリート造7階建て
築年:平成3年6月
建物施工会社:鹿島建設株式会社
建物管理会社:長谷工コミュニティ

