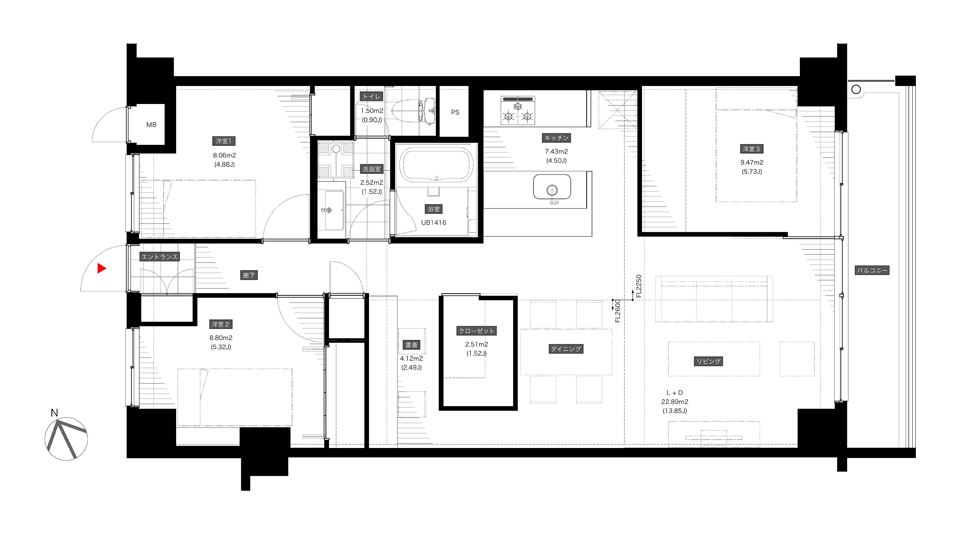
設計させていただいたマンション一室の内装改修計画 house m/t の内覧会を下記日時にて行ないます!
・house m/t
・日時:2015年7月25日(土)14:00〜17:00
・場所:神奈川県宮前区宮崎1-12-25 秀和宮崎台レジデンス206号室
東京急行電鉄田園都市線 宮崎台駅 徒歩約7分
販売物件ですので、ご購入可能です!
内装計画を検討されている方、インテリアにご興味のある方はこの機会に是非お越し下さい。
参加ご希望の方は下記フォームにご記入いただければ幸いです。
またご不明な点がございましたら下記までご連絡下さい。
・tel : 090.3526.6198
・mail : ryo.aso@me.com
皆さまのお越しをお待ちしています!
ご購入の際の詳細はこちらをご参照下さい! → ■


