再販売を目的としたマンション一室の改修工事(2022.07)
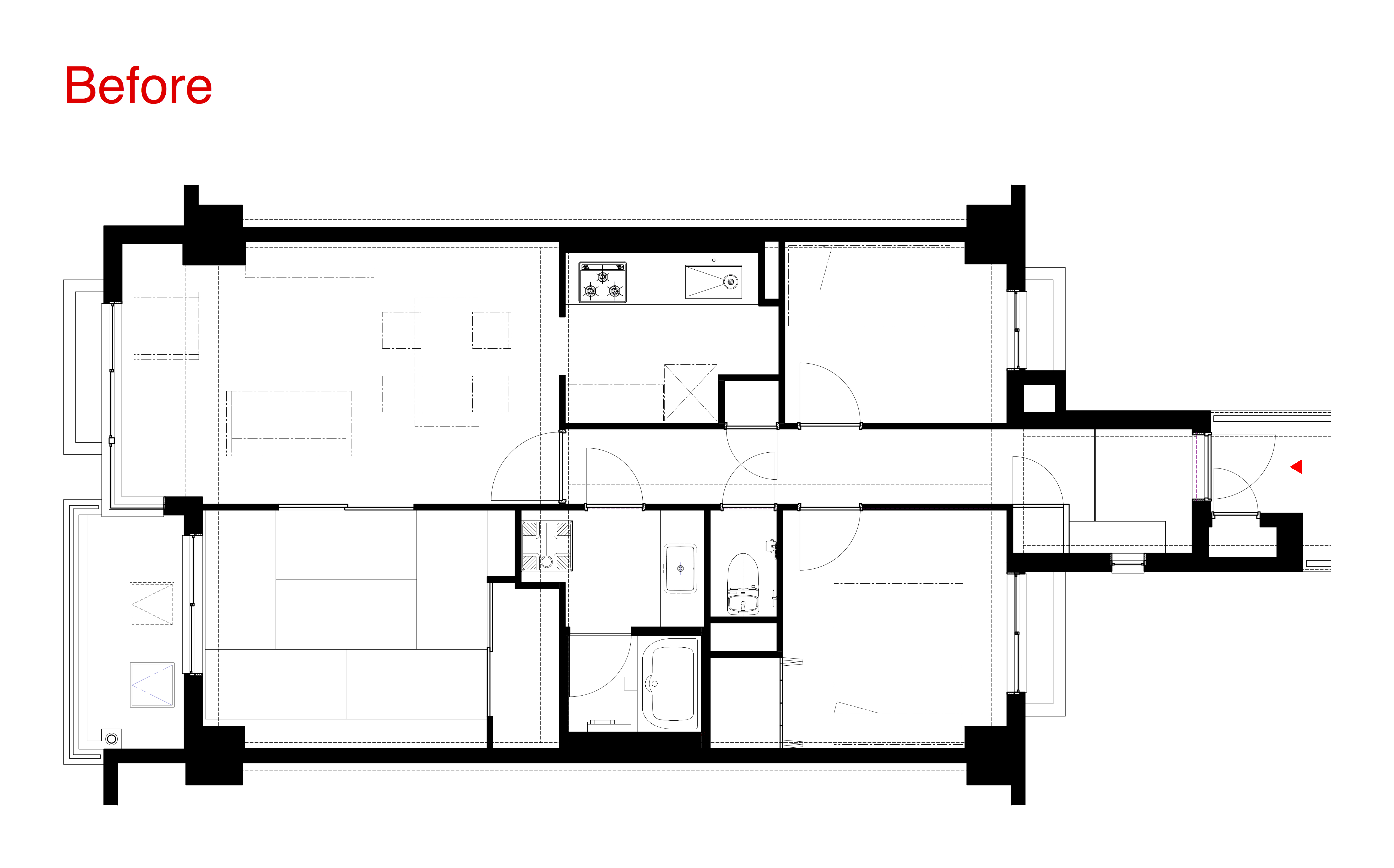
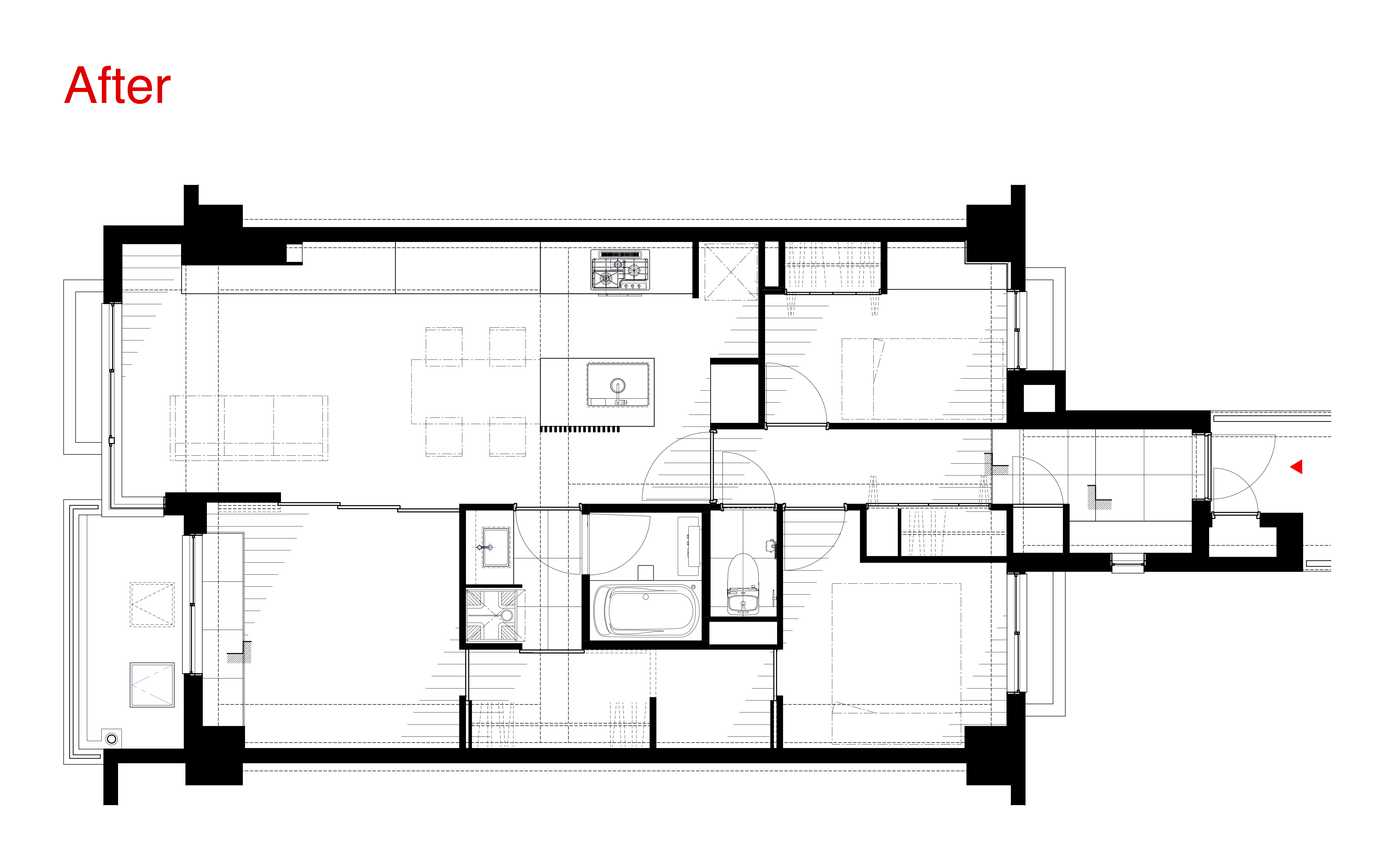
既存間取りはオーソドックスな約75m2の3LDK。新規プランは、大きなゾーニングの変更はせず新たな動線を導入する計画とした。
水回りのプランを改善し、寝室⇄WIC⇄洗面室⇄キッチンの動線を確保し、多様な生活スタイルに対応したプランを実現した。
キッチンは、二の字型の製作キッチンを計画。長いキッチンカウンターは高さを調節し、TV台まで連続するデザインとした。
時間の流れとともに変化する家族の団欒を、緩やかに繋がる空間で体感できるよう配置した。










用途:再販売物件
場所:東京都世田谷区
面積:74.91m2
構造:鉄筋コンクリート構造(柱梁構造)
築年:1983.06
設計期間:2022.01-03
施工期間:2021.04-06
施主:Tanaka Constraction Co., Ltd.
企画:RYO ASO DESIGN OFFICE
設計:RYO ASO DESIGN OFFICE
施工:SANKEI HOME
撮影:RYO ASO DESIGN OFFICE